
Mortgage Calculations provided by IDX Broker.
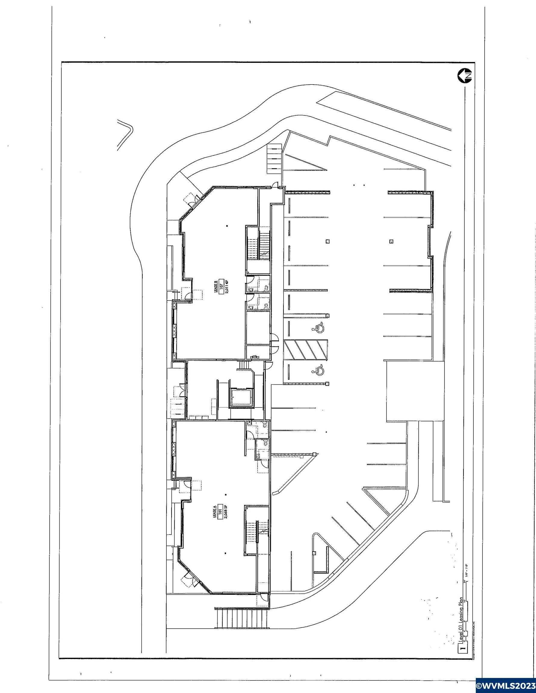
Brand new Retail/Office spaces For Lease on the ground floor of Osprey Point, the new luxury apartments in Downtown Independence. Suite 101 A is approx 1293 SF. Suite B is approx 973 SF. Can be combined. Each suite has 1 private restroom. Terrific exposure to Main St, Riverview Park, Willamette River, Independence Hotel & Historic Downtown Independence. Spaces are being brought to warm vanilla shell!
Walk Score information powered by: Walk Score. Based on information from Willamette Valley Multiple Listing Service, which neither guarantees nor is in any way responsible for its accuracy. All data is provided AS IS and with all faults. Data maintained by Willamette Valley Multiple Listing Service may not reflect all real estate activity in the market. Data last updated: Tuesday, April 14th, 2026 02:11:12 PM. Listing courtesy of SMI REAL ESTATE.
Data services provided by IDX Broker
| Price: | $3,626 |
| Address: | 75 C (101 A & B) St |
| City: | Independence |
| County: | Polk |
| State: | Oregon |
| Zip Code: | 97351 |
| MLS: | 812145 |
| Square Feet: | 2,266 |
| Acres: | 0.47 |
| Lot Square Feet: | 0.47 acres |


