3590 Highway 101, Florence, OR 97439
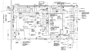
Fully entitled and permitted 0.993 acre commercial site with strong highway exposure. The approved development includes four auto fueling positions and a 5,684 SF building featuring a 3,540 SF convenience store and a 2,044 SF in-line QSR with drive thru. Located on a high- visibility corner along the Oregon Coast Highway adjacent to a new Burger King. Average traffic counts are approximately 13,000 vehicles / day in average daily traffic. Opportunity for a QSR partnership or a larger-format retail C-Store.
Florence is a small city at the mouth of the Siuslaw River, on the Oregon coast. Its vast Sea Lion Caves are home to Steller sea lions. Nearby, trails around the restored 19th-century Heceta Head Lighthouse offer views of seabirds and migrating whales. Shops and galleries fill the city’s Historic Old Town district. Across the river are the towering sand mounds of the Oregon Dunes National Recreation Area.
RYAN BRUSH
BROKER
LICENSED IN THE STATE OF OREGON









